Cibelli + Guadagno architetti
Architettura Restauro Design
Home
Portfolio
Lavori precedenti
Posts RSS
Comments RSS
Mobile/iPhone access
12 dicembre 2007
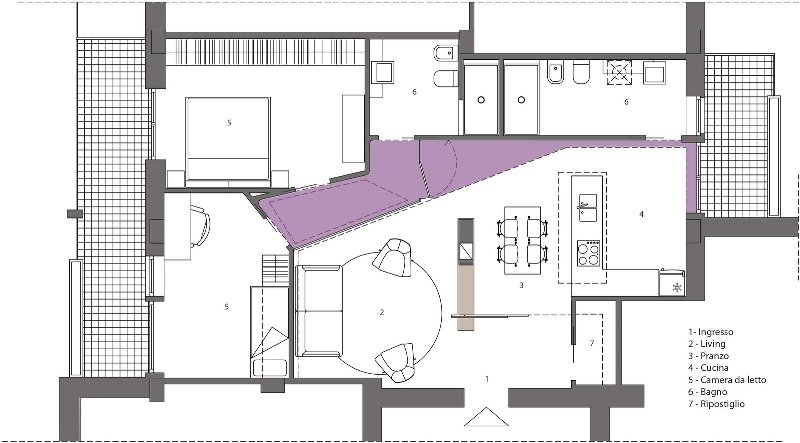
Appartamento a Foggia [progetto]
- Superficie: 80 mq
Pianta
0 commenti:
Posta un commento
Post più recente
Post più vecchio
Home page
Iscriviti a:
Commenti sul post (Atom)
Cibelli + Guadagno architetti
Studio di architettura
via Regina Margherita 168 71029 Troia (FG)
t./f. +39.0881.979.331
skype: ascito
Facebook
Iscriviti al gruppo!
architecture-page
profile
Link
- Distretto Culturale
Daunia Vetus
Categorie
-
Articoli (2)
Commerciale (2)
Musei (2)
Pensieri in libertà (1)
Progetti (2)
Pubblicazioni (5)
Recupero architettonico funzionale (1)
Residenziale (2)
Restauro (2)
Ristrutturazioni (7)
0 commenti:
Posta un commento