Cibelli + Guadagno architetti

Architettura Restauro Design

Ristrutturazione di un interno su due livelli a Troia (FG)
- Superficie: 180 mq

IMPRESE:
- impianto idrico sanitaro: ditta Giovanni Vitale Troia (FG)
- impianto elettrico: ditta Tonino
Zurlo Troia (FG)
- realizzazione arredi su misura: ditta Emanuele Tozzi Lucera (FG)
FORNITURE:
- D'angelo Arredamenti Foggia
- Volpe Edile Foggia

CONSULENZA ILLUMINOTECNICA:

- Lello Danese Illuminazione Foggia

"Lo spazio di partenza, regolare e baricentrico, viene riletto attraverso un duplice passaggio che parte dalla negazione della sue caratteristiche formali intrinseche, generando una serie di piani e volumi in maniera eccentrica, da un angolo del perimetro, ed arriva all'affermazione di una spazialità essenzialmente organizzata intorno ad un fulcro, ma in maniera molto dinamica e flessibile."




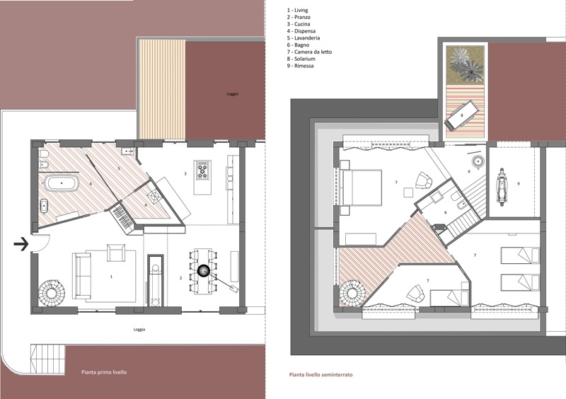
Pianta primo livello e seminterrato



Ingresso e Living




Cucina




Servizi zona giorno




Scala e disimpegno




Camera da letto principale




Bagno camera da letto principale




Foto di Massimo Apollo